Nowe oblicze ulicy Bieżuńskiej
Planowana inwestycja przy ul. Bieżuńskiej obejmuje zagospodarowanie zdegradowanych terenów poprzemysłowych na warszawskim Targówku.
Projekt zakłada przekształcenie obszaru, który obecnie pozostaje w dużej mierze niedostępny i nieużytkowany, w spójną, uporządkowaną część miasta o wyraźnie określonych funkcjach.
W ramach inwestycji przewidziano realizację czterech budynków mieszkaniowych z lokalami usługowymi w parterach oraz zorganizowanymi przestrzeniami wspólnymi. Istotnym elementem założenia będzie trzyciągowa szkoła podstawowa, która odpowie na potrzeby rozwijającej się okolicy i stanie się ważnym punktem dla lokalnej społeczności.
Projekt obejmuje również przebudowę ulicy Bieżuńskiej oraz przebudowę skrzyżowania ulic Radzymińskiej, Bieżuńskiej i Trockiej. Działania te mają na celu poprawę bezpieczeństwa.
Integralną częścią inwestycji będą ogólnodostępne tereny zieleni, sportu i rekreacji, dostępne zarówno dla mieszkańców nowej zabudowy, jak i dla okolicznej społeczności. Centralnie położony teren UTWORS o powierzchni około 7 200 m² pełnić będzie rolę głównej przestrzeni wspólnej – miejsca wypoczynku, aktywności i spotkań.
Całość założenia ma na celu poprawę jakości przestrzeni publicznej, uporządkowanie układu urbanistycznego oraz stopniową integrację nowej zabudowy z istniejącym otoczeniem.
Lokalizacja
i kontekst
Ulica Bieżuńska przez wiele lat pełniła funkcję zaplecza przemysłowego tej części Targówka. Zlokalizowane tu zakłady, magazyny i obiekty produkcyjne po zakończeniu działalności stopniowo popadały w degradację, a teren nie doczekał się kompleksowego zagospodarowania.
Zły stan techniczny zabudowy, nieuporządkowana infrastruktura oraz zaniedbana przestrzeń publiczna sprawiły, że północna strona ul. Radzymińskiej należy dziś do najbardziej problemowych i niedostosowanych do współczesnych potrzeb mieszkańców obszarów tej części dzielnicy.
Po południowej stronie ul. Radzymińskiej znajduje się Targówek Mieszkaniowy – obszar zaprojektowany i zrealizowany w latach 70. XX wieku jako spójna dzielnica mieszkaniowa z pełnym zapleczem społecznym. Powstały tu szkoły, przedszkola, tereny zieleni, infrastruktura komunikacyjna oraz usługi, które do dziś zapewniają sprawne funkcjonowanie tej części miasta. Choć układ urbanistyczny i standard przestrzeni odpowiadają realiom sprzed kilkudziesięciu lat, Targówek Mieszkaniowy pozostaje obszarem dobrze zorganizowanym i czytelnym funkcjonalnie.
Planowana przebudowa terenów po północnej stronie ul. Radzymińskiej ma na celu uzupełnienie istniejącej luki urbanistycznej i stopniowe uporządkowanie struktury przestrzennej tej części dzielnicy. Nowa zabudowa została zaprojektowana jako uzupełnienie istniejącego układu Targówka Mieszkaniowego, z uwzględnieniem współczesnych potrzeb w zakresie standardu zabudowy mieszkaniowej, jakości przestrzeni publicznych oraz dostępności usług. Dzięki temu powstający obszar będzie mógł stanowić naturalną kontynuację tej części Targówka, wpisując się w jej istniejący charakter i strukturę.
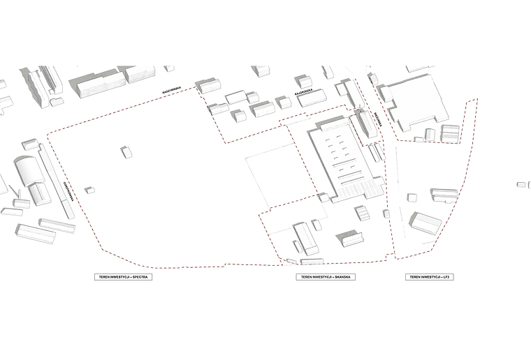
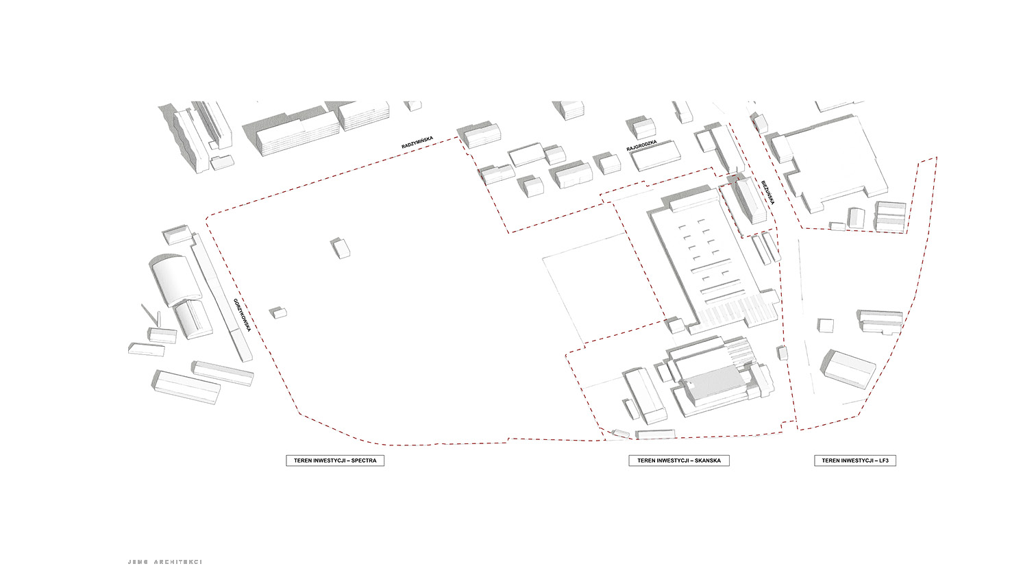
Masterplan koncepcji zagospodarowania części terenów poprzemysłowych Targówka Fabrycznego
Podstawą planowanej transformacji terenów po północnej stronie ul. Radzymińskiej jest projekt wyłoniony w konkursie urbanistyczno-architektonicznym na opracowanie koncepcji zagospodarowania części terenów poprzemysłowych Targówka Fabrycznego w Warszawie.
Konkurs został rozstrzygnięty w marcu 2015 roku. Jego organizatorem było Miasto Stołeczne Warszawa, a postępowanie prowadzone było przez Biuro Architektury i Planowania Przestrzennego.
Pierwszą nagrodę w konkursie otrzymało konsorcjum firm Dawos oraz BBGK. W ocenie jury nagrodzona praca w sposób najpełniejszy odpowiadała na warunki konkursu, prezentując spójne i kompletne rozwiązania urbanistyczne oraz architektoniczne, czytelne zarówno w warstwie graficznej, jak i opisowej.
Szczególnie wysoko oceniono sposób powiązania projektowanego obszaru z otoczeniem oraz analizę istniejących uwarunkowań komunikacyjnych. Za właściwe uznano przyjęte proporcje funkcjonalne, z dominującą funkcją mieszkaniową, uzupełnioną o dostosowaną do potrzeb infrastrukturę społeczną. Istotnym atutem koncepcji jest również układ zróżnicowanych funkcjonalnie przestrzeni publicznych, powiązanych z wartościowymi elementami dziedzictwa, centralnie zlokalizowanym terenem zieleni oraz czytelnym strefowaniem obsługi komunikacyjnej całego obszaru.
Planowana inwestycja ma na celu całkowite przekształcenie tego miejsca i rozpoczęcie zmiany charakteru tej części Targówka.
Nowa zabudowa, ulice, place i zieleń stworzą spójną, otwartą przestrzeń miejską, sprzyjającą integracji mieszkańców i codziennej aktywności.
Dominującą funkcją będzie zabudowa mieszkaniowa, uzupełniona o usługi oraz funkcję oświatową. Dzięki temu teren, który dziś pozostaje wyłączony z użytkowania, zyska nową rolę w strukturze miasta i stanie się żywą, przyjazną częścią dzielnicy.
Dodatkowym atutem lokalizacji jest bliskość centrum oraz bardzo dobra dostępność komunikacyjna. Rozwinięta sieć transportu miejskiego zapewnia wygodne połączenia z innymi częściami Warszawy.
Mieszkania i usługi
Planowana inwestycja obejmuje realizację budynków mieszkalnych wielorodzinnych z lokalami usługowo-handlowymi w parterach, zaprojektowanych zgodnie z założeniami pracy konkursowej.
Zabudowę zaplanowano w układzie kwartałowym, umożliwiającym etapową realizację całego zespołu. Projekt obejmuje trzy kwartały zabudowy mieszkaniowej oraz uzupełniającą zabudowę od strony terenów kolejowych (budynek nr 4). Wnętrza kwartałów przeznaczone zostały wyłącznie dla mieszkańców poszczególnych budynków, co sprzyja integracji użytkowników i tworzeniu kameralnych przestrzeni półprywatnych.
W ramach inwestycji powstanie ok. 600 mieszkań o łącznej powierzchni użytkowej (PUM) ok. 35 570 m²
Lokale usługowo-handlowe zaplanowano w parterach budynków, zgodnie z wymaganiami BAiPP oraz wytycznymi ULIM. Usługi pełnić będą funkcję uzupełniającą wobec zabudowy mieszkaniowej, odpowiadając na potrzeby mieszkańców oraz użytkowników okolicznych terenów. Zlokalizowano je głównie od strony kontynuacji Alei Szkolnej, urządzonych terenów zieleni i rekreacji oraz ul. Bieżuńskiej.
Łączna powierzchnia użytkowa usług (PUU) wynosi ok. 2400 m².
Dla inwestycji przewidziano ok. 550 miejsc postojowych dla samochodów, przeznaczonych dla mieszkańców oraz użytkowników lokali usługowych. W ramach tej liczby 26 miejsc postojowych przeznaczono dla obsługi funkcji usługowych, a dodatkowo 27 miejsc zaplanowano jako ogólnodostępne, zgodnie z wymaganiami dotyczącymi dostępności przestrzeni. Uzupełnieniem układu komunikacyjnego są miejsca postojowe dla rowerów, zaprojektowane z myślą o codziennej mobilności mieszkańców oraz użytkowników usług – w sumie przewidziano ich 1550.
Podstawowe parametry inwestycji mieszkaniowo-usługowej
terenu inwestycji
mieszkań
mieszkań
usług
dla rowerów
dla samochodów
ogólnodostępnych
Szkoła
Jednym z kluczowych elementów planowanego zagospodarowania terenu przy ul. Bieżuńskiej będzie nowa szkoła podstawowa dla klas I–III. Jej realizacja wynika z szerszych założeń urbanistycznych dla tej części dzielnicy oraz stanowi odpowiedź na potrzeby związane z rozwojem funkcji mieszkaniowej i wzrostem liczby mieszkańców w okolicy
Szkoła zostanie zlokalizowana na wydzielonej działce i zaprojektowana jako integralna część nowo powstającego zespołu miejskiego. Bezpośrednie sąsiedztwo zabudowy mieszkaniowej oraz ogólnodostępnych przestrzeni publicznych zapewni dzieciom bezpieczny i wygodny dostęp do placówki, jednocześnie wzmacniając lokalny, sąsiedzki charakter miejsca.
Obiekt oświatowy będzie pełnił istotną rolę społeczną – nie tylko jako przestrzeń edukacji najmłodszych, ale również jako element porządkujący strukturę przestrzenną i sprzyjający integracji mieszkańców nowej i istniejącej zabudowy tej części Targówka. Szkoła zostanie wybudowana przez inwestora i przekazana na rzecz dzielnicy, wzmacniając lokalną infrastrukturę publiczną.
Placówka została zaplanowana jako kameralna, dostosowana do potrzeb najmłodszych uczniów, z naciskiem na wysoką jakość przestrzeni edukacyjnej oraz znaczący udział terenów zieleni.
Zieleń, rekreacja i przestrzenie wspólne
W ramach planowanego zagospodarowania terenu przy ul. Bieżuńskiej przewidziano ogólnodostępne przestrzenie zieleni, rekreacji i sportu, stanowiące integralny element nowo kształtowanego zespołu miejskiego.
Ich celem jest stworzenie miejsc sprzyjających codziennemu wypoczynkowi, aktywności fizycznej oraz spotkaniom mieszkańców – zarówno nowej zabudowy, jak i otaczającej jej części dzielnicy.
Projekt zakłada znaczne zwiększenie udziału zieleni poprzez wprowadzenie nowych nasadzeń drzew, krzewów oraz roślinności niskiej. Zieleń została zaprojektowana w sposób porządkujący przestrzeń i czytelnie wyznaczający strefy o zróżnicowanym charakterze użytkowania – od miejsc przeznaczonych do spokojnego wypoczynku po przestrzenie rekreacyjne i sportowe.
Projektowane nasadzenia będą sprzyjać poprawie warunków przyrodniczych, wspierać obecność ptaków i owadów oraz tworzyć powiązania z istniejącymi i planowanymi terenami zieleni w otoczeniu. Dzięki temu obszar inwestycji stanie się częścią lokalnej struktury przyrodniczej, a nie wyizolowanym zespołem zabudowy.
Na terenach ogólnodostępnych przewidziano ciągi piesze i rowerowe, urządzenia rekreacyjne i sportowe, place zabaw, siłownie plenerowe, wielofunkcyjne boisko, zbiornik wodny oraz miejsca do odpoczynku wyposażone w elementy małej architektury. Tereny rekreacyjne o charakterze parkowym obejmą powierzchnię ok. 3 000 m²
Podstawowe parametry terenów zielonych:
Usprawnienia komunikacyjne
Obsługa komunikacyjna planowanej inwestycji została zaprojektowana w sposób zapewniający czytelny i bezpieczny dostęp do wszystkich elementów zespołu, w tym zabudowy mieszkaniowej, usług oraz placówki oświatowej z jednoczesnym uwzględnieniem powiązania z sąsiednimi inwestycjami oraz z zapewnieniem miastotwórczej roli komunikacji pieszej.
Obsługa komunikacyjna osiedla opiera się na ulicy Bieżuńskiej a za jej pośrednictwem na ul. Radzymińskiej (dojazd do centrum i trasy S8) oraz ul. Trockiej (dojazd do stacji metra Trocka). Dojścia piesze do ulicy Radzymińskiej będą możliwe wzdłuż ulicy Bieżuńskiej oraz przez teren sąsiedniej inwestycji mieszkaniowej, do której zaplanowano liczne połączenia piesze.
Istotnym elementem założenia urbanistycznego jest kontynuacja Aleja Szkolna – kontynuacja istniejącego ciągu pieszego, stanowiąca bezpieczne i czytelne połączenie pomiędzy ul. Bieżuńską a zespołem szkół. Przestrzeń ta została zaprojektowana z myślą o wygodnym i bezpiecznym poruszaniu się pieszych, w szczególności dzieci i opiekunów, a także jako trasa umożliwiająca dojazd do szkoły rowerem lub hulajnogą. Aleja Szkolna posiadająca swoją kontynuację w inwestycjach sąsiednich stanowi oś komunikacji pieszej pomiędzy osiedlami. Przy przekraczaniu ciągów komunikacji kołowej (droga osiedlowa, ul. Bieżuńska) zaplanowano wyniesienia zapewniające bezpieczeństwo i priorytet ruchu pieszego.
Układ drogowy oparty jest na jednokierunkowej pętli z wjazdem od strony ul. Bieżuńskiej, obsługującej wszystkie budynki zespołu, oraz dwukierunkowej drodze wzdłuż terenów kolejowych, która w przyszłości zostanie połączona z układem komunikacyjnym sąsiednich terenów i zapewni dojazd do planowanego przystanku PKP. Układ drogowy przewiduje możliwość obsługi komunikacyjnej szkoły zarówno technicznej (śmieciarka, dostawy) jak i dojazd autobusu szkolnego/wycieczkowego.
Układ drogowy oparty jest na jednokierunkowej pętli z wjazdem od strony ul. Bieżuńskiej, obsługującej wszystkie budynki zespołu, oraz dwukierunkowej drodze wzdłuż terenów kolejowych, która w przyszłości zostanie połączona z układem komunikacyjnym sąsiednich terenów i zapewni dojazd do planowanego przystanku PKP. Układ drogowy przewiduje możliwość obsługi komunikacyjnej szkoły zarówno technicznej (śmieciarka, dostawy) jak i dojazd autobusu szkolnego/wycieczkowego.
Zgodnie ze standardami m.st. Warszawy na terenie inwestycji przewidziano ogólnodostępne miejsca postojowe przeznaczone dla szkoły oraz funkcji usługowych, a także odpowiednią liczbę miejsc postojowych dla rowerów, zlokalizowanych zarówno przy budynkach mieszkalnych, jak i w rejonie placówki oświatowej. Planowane nawierzchnie jezdni, chodników, zjazdów i infrastruktury towarzyszącej będą spełniać lub przekraczać wymagania standardów.
Projekt obejmuje również przebudowę fragmentu ul. Bieżuńskiej oraz skrzyżowania ulic Radzymińskiej, Bieżuńskiej i Trockiej, co ma na celu poprawę bezpieczeństwa ruchu, uporządkowanie układu drogowego oraz zwiększenie komfortu poruszania się pieszych, rowerzystów i kierowców.
Porozmawiajmy! Dialog o inwestycji
Głos mieszkańców ma dla nas znaczenie.
Konsultacje trwają od 27 lutego do 25 marca 2026 r.
Zespół projektowy
Autor: mgr inż. arch. Olgierd Jagiełło, Paweł Majkusiak, Dariusz Wasak
Zespół: mgr inż. arch Sabina Chmiel-Sutor, Cezary Nagórski
Wizualizacje: mgr inż. arch. Piotr Zieliński
Pracownia JEMS Architekci została założona w 1988 roku, jednakże zespół architektoniczny będący zalążkiem biura działa nieprzerwanie od początku lat 80-tych.
Partnerska współpraca realizowana w formule biura – warsztatu, przy współuczestnictwie całego zespołu JEMS, tworzy przestrzeń rozmów i poszukiwań, wymiany idei i poglądów. JEMS jest biurem otwartej dyskusji i debaty. To nasza wartość fundamentalna.
Pracownia WWAA została założona w 2007 roku przez Natalię Paszkowską i Marcina Mostafę.
WWAA projektuje przestrzenie mieszkaniowe i publiczne, pracując z tkanką miasta w skali od pojedynczego kwartału czy dzielnicy po budynki i ekspozycje. Zawsze punktem wyjścia jest kontekst – historia miejsca i relacje społeczne – a celem realny wpływ na codzienne doświadczenia użytkowników oraz poprawa jakości życia.
Barbara Kraus-Galińska, Barbara Jackiewicz, Maciej Nonas
Pracownia od 1994 r. tworzy projekty obiektów architektury krajobrazu: parków, zieleńców, tereny zieleni osiedlowej, place zabaw, tereny sportowe oraz szkoły, obiekty użyteczności publicznej i ogrody prywatne.
Zespół w obecnym składzie: Barbara Kraus-Galińska, Barbara Jackiewicz, Maciej Nonas.
mgr inż. Sebastian Fijałkowski, mgr inż. Marek Więckowski, inż. Michał Więckowski
Jesteśmy pracownią projektową branży drogowej z wieloletnim doświadczeniem. Projektujemy drogi i ulice oraz infrastrukturę towarzyszącą taką jak parkingi, przystanki i pętle autobusowe, place manewrowe i stacje paliw. Mamy duże doświadczenie w projektowaniu rozwiązań rowerowych i pieszych. Konsultujemy układy urbanistyczne i komunikacyjne. Prowadzimy badania ruchu i zachowań komunikacyjnych. Opracowujemy studia wykonalności, programy funkcjonalno-użytkowe, analizy i prognozy ruchu.
Współpracujemy z biurami architektonicznymi i inwestorami. Naszymi klientami są również jednostki samorządu terytorialnego.
Nasi przedstawiciele są współautorami wielu tomów "Wytycznych rekomendowanych dotyczących dróg" publikowanych przez Ministerstwo Infrastruktury jako wzorce i standardy w budownictwie.
Biuro Prac Inżynierskich istnieje od lutego 1991 roku. Przez kilkanaście lat funkcjonowało na podstawie wpisów do ewidencji działalności gospodarczej, po czym – w związku z rozwojem firmy – w 2003 r. utworzono spółkę z ograniczoną odpowiedzialnością, która w 2004 r. została zarejestrowana w Krajowym Rejestrze Sądowym.
Inwestor
Skanska Residential Development Poland to deweloper realizujący wysokiej jakości projekty mieszkaniowe w Polsce od 2011 roku.
Spółka działa głównie w Warszawie, gdzie zrealizowała m.in. Osiedle Mickiewicza, Jaśminowy Mokotów, Holm House, Park Skandynawia oraz NU Warszawa Wola. Od 2021 roku rozwija działalność również w Krakowie, realizując inwestycje Hemma Orawska oraz Awangarda Mogilska.
Wszystkie projekty spółki powstają w standardzie certyfikacji środowiskowej BREEAM. Osiedle Mickiewicza było pierwszym projektem mieszkaniowym w Polsce z tym certyfikatem, a Holm House 5 jako pierwszy uzyskał poziom BREEAM Excellent. Skanska Residential konsekwentnie rozwija także standardy dostępności – osiedle Holm House jako pierwsze w Polsce otrzymało certyfikat „Obiekt bez barier”.
Skanska Residential Development Poland jest częścią Grupy Skanska, działającej od 1887 roku i realizującej projekty mieszkaniowe m.in. w Szwecji, Wielkiej Brytanii, Norwegii, Finlandii i Czechach.